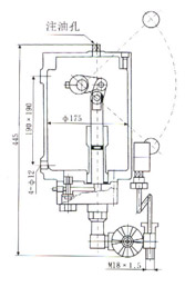
SB03 175型手搖油泵適用于液化石油氣儲配站儲罐下緊急切斷閥配套使用,遠控注油,控制其開啟和關閉。
油腔容量:4000cc
公稱壓力:PN4.0MPa

| 泵體 | 活瓣 | 活瓣密封圈 | 活塞 | 柱塞 | 油壓缸 | 易熔塞 |
|---|---|---|---|---|---|---|
| 35 | 銅 | 丁晴橡膠I-3 | 2Cr13 | 2Cr13 | 35 | 銅 |
| 公稱壓力 | 殼體試驗 | 密封試驗 | 適用介質 | 適宜溫度 |
|---|---|---|---|---|
| 4.0 | 6.0 | 4.4 | 合成錠子油等 | -40~+80℃ |
溫馨提示:
本文中所有文字、數據、圖片均只適用于參考。需要查看更多的SB03 175型手搖油泵性能參數、結構尺寸參數、價格等詳情,或要求印刷樣本,請聯系我們。
主營產品:氣動調節閥 - 電動調節閥 - 自力式調節閥
版版權所有 © 上海大田閥門管道工程有限公司
地址:上海市浦東新區川宏路528號宏圖大樓5樓
