Z41國標手動法蘭閘閥是一種最常見的啟閉閥,利用閘板的上下工作來接通(全開)和截斷(全關)管道中的流體介質。 此類閘閥廣泛用于自來水、污水、建筑、石油、化工、食品、醫藥、輕紡、電力、船舶、冶金、能源系統等體管線上作為調節和截流裝置使用。
裝置使用。
| 設計與制造 | 結構長度 | 法蘭尺寸 | 壓力溫度 | 試驗檢驗 |
|---|---|---|---|---|
| GB12234 | GB12221 | GB9113 JB79 | GB9131 | GB/T13927 JB/T9092 |
| 公稱壓力 | 1.6 | 2.5 | 4.0 | 6.4 | 10.0 | 16.0 |
|---|---|---|---|---|---|---|
| 強度試驗 | 2.4 | 3.8 | 6.0 | 9.6 | 15.0 | 24.0 |
| 水密封試驗 | 1.8 | 2.8 | 4.4 | 7.0 | 11.0 | 18.0 |
| 上密封試驗 | 1.8 | 2.8 | 4.4 | 7.04 | 11.0 | 18.0 |
| 氣密封試驗 | 0.4-0.7 | |||||
| 體蓋板 | 閥 桿 | 密封面 | 墊 片 | 填 料 | 工作溫度℃ | 適用介質 |
|---|---|---|---|---|---|---|
| WCB | 2Cr13 | 13CrSTL本體材料尼龍 | 增強柔性石墨1Cr13/ 柔性石墨08軟鋼0Cr18Ni9Ti0Cr17- Ni12Mo2TiXD550F(T)PTFE |
柔性石墨增強柔性石墨 SFB/260SFP/260PTFE |
≤425 | 水、蒸汽、油品 |
| WC1 | 38CrMoA125Cr2MoV | ≤450 | ||||
| WC6 | ≤540 | |||||
| WC9 | ≤570 | |||||
| ZGCr5Mo | ≤540 | |||||
| ZG1Cr18Ni9Ti | 1Cr18Ni9Ti | ≤200 | 銷酸類 | |||
| ZG1Cr18Ni12Mo2Ti | 1C18Ni12Mo2Ti | ≤200 | 醋酸類 |

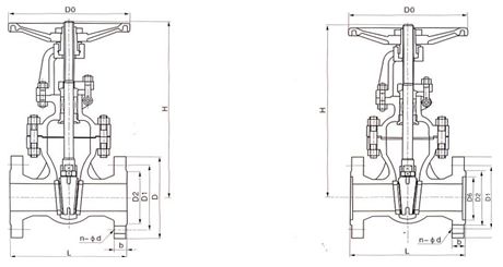
| 1.6MPa | DN | L | d | D1 | D2 | b | n-Φd | H | D0 |
|---|---|---|---|---|---|---|---|---|---|
| 凸面法蘭 RFZ41HZ41YZ41 FZ41NZ40HZ40YZ40WZ40 FZ40N16C16P16R16I |
15 | 130 | 95 | 65 | 45 | 14 | 4-Φ14 | 170 | 120 |
| 20 | 150 | 105 | 75 | 55 | 14 | 4-Φ14 | 190 | 140 | |
| 25 | 160 | 115 | 85 | 65 | 14 | 4-Φ14 | 205 | 160 | |
| 32 | 180 | 135 | 100 | 78 | 16 | 4-Φ18 | 270 | 180 | |
| 40 | 200 | 145 | 110 | 85 | 16 | 4-Φ18 | 310 | 200 | |
| 50 | 250 | 160 | 125 | 100 | 16 | 4-Φ18 | 358 | 240 | |
| 65 | 265 | 180 | 145 | 120 | 18 | 4-Φ18 | 373 | 240 | |
| 80 | 280 | 195 | 160 | 135 | 20 | 8-Φ18 | 435 | 280 | |
| 100 | 300 | 215 | 180 | 155 | 20 | 8-Φ18 | 500 | 300 | |
| 125 | 325 | 245 | 210 | 185 | 22 | 8-Φ18 | 614 | 320 | |
| 150 | 350 | 280 | 240 | 210 | 24 | 8-Φ23 | 674 | 320 | |
| 200 | 400 | 335 | 295 | 265 | 26 | 12-Φ23 | 818 | 400 | |
| 250 | 450 | 405 | 355 | 320 | 30 | 12-Φ25 | 969 | 450 | |
| 300 | 500 | 460 | 410 | 375 | 30 | 12-Φ25 | 1145 | 500 | |
| 350 | 550 | 520 | 470 | 435 | 34 | 16-Φ25 | 1280 | 500 | |
| 400 | 600 | 580 | 525 | 485 | 36 | 16-Φ30 | 1452 | 560 | |
| 450 | 650 | 640 | 585 | 545 | 40 | 20-Φ30 | 1541 | 600 | |
| 500 | 700 | 705 | 650 | 608 | 44 | 20-Φ34 | 1676 | 640 | |
| 600 | 800 | 840 | 770 | 718 | 48 | 20-Φ41 | 1874 | 720 | |
| 700 | 900 | 910 | 840 | 788 | 50 | 24-Φ41 | 2083 | 800 | |
| 800 | 1000 | 1020 | 950 | 898 | 52 | 24-Φ41 | 2400 | 950 | |
| 900 | 1100 | 1120 | 1050 | 998 | 54 | 28-Φ41 | 2950 | 1000 | |
| 1000 | 1200 | 1255 | 1170 | 1110 | 56 | 28-Φ48 | 3245 | 1000 |

| 2.5MPa | DN | L | D | D1 | D2 | b | n-Φd | H | DO |
|---|---|---|---|---|---|---|---|---|---|
| 凸面法蘭 RFZ41 HZ41 YZ41 FZ41 NZ40 HZ40 YZ40 WZ40 FZ40 N25 C25 P25 R25I |
15 | 130 | 95 | 65 | 45 | 16 | 4-Φ14 | 172 | 120 |
| 20 | 150 | 105 | 75 | 55 | 16 | 4-Φ14 | 191 | 140 | |
| 25 | 160 | 115 | 85 | 65 | 16 | 4-Φ14 | 205 | 160 | |
| 32 | 180 | 135 | 100 | 78 | 18 | 4-Φ18 | 270 | 180 | |
| 40 | 200 | 145 | 110 | 85 | 18 | 4-Φ18 | 300 | 200 | |
| 50 | 250 | 160 | 125 | 100 | 20 | 4-Φ18 | 357 | 240 | |
| 65 | 265 | 180 | 145 | 120 | 22 | 8-Φ18 | 376 | 240 | |
| 80 | 280 | 195 | 160 | 135 | 22 | 8-Φ18 | 434 | 280 | |
| 100 | 300 | 230 | 190 | 160 | 24 | 8-Φ23 | 502 | 300 | |
| 125 | 325 | 270 | 220 | 188 | 28 | 8-Φ25 | 613 | 320 | |
| 150 | 350 | 300 | 250 | 218 | 30 | 8-Φ25 | 675 | 320 | |
| 200 | 400 | 360 | 310 | 278 | 34 | 12-Φ25 | 819 | 400 | |
| 250 | 450 | 425 | 370 | 332 | 36 | 12-Φ30 | 968 | 450 | |
| 300 | 500 | 485 | 430 | 390 | 40 | 16-Φ30 | 1144 | 500 | |
| 350 | 550 | 550 | 490 | 448 | 44 | 16-Φ34 | 1280 | 500 | |
| 400 | 600 | 610 | 550 | 505 | 48 | 16-Φ34 | 1451 | 560 | |
| 450 | 650 | 660 | 600 | 555 | 50 | 20-Φ34 | 1542 | 600 | |
| 500 | 700 | 730 | 660 | 510 | 52 | 20-Φ41 | 1678 | 640 | |
| 600 | 800 | 840 | 770 | 718 | 56 | 20-Φ41 | 1875 | 720 | |
| 700 | 900 | 955 | 875 | 815 | 60 | 24-Φ28 | 2082 | 800 | |
| 800 | 1000 | 1070 | 990 | 930 | 64 | 24-Φ28 | 2403 | 950 | |
| 900 | 1100 | 1180 | 1090 | 1025 | 66 | 28-Φ54 | 2952 | 1000 | |
| 1000 | 1200 | 1305 | 1210 | 1140 | 68 | 28-Φ58 | 3244 | 1000 |
| 4.0MPa | DN | L | D | D1 | D2 | D6 | b | n-Φd | H | D0 |
|---|---|---|---|---|---|---|---|---|---|---|
| 凹凸法蘭 MFMZ41HZ41 YZ41WZ41 FZ40HZ40 YZ40WZ40 F4040P40R40I |
15 | 130 | 95 | 65 | 45 | 40 | 16 | 4-Φ14 | 134 | 120 |
| 20 | 150 | 105 | 75 | 55 | 51 | 16 | 4-Φ14 | 188 | 140 | |
| 25 | 160 | 115 | 85 | 64 | 58 | 16 | 4-Φ14 | 206 | 140 | |
| 32 | 180 | 135 | 100 | 78 | 66 | 18 | 4-Φ18 | 272 | 180 | |
| 40 | 200 | 145 | 110 | 85 | 76 | 18 | 4-Φ18 | 322 | 180 | |
| 50 | 250 | 160 | 125 | 100 | 88 | 20 | 4-Φ18 | 370 | 240 | |
| 65 | 280 | 180 | 145 | 120 | 110 | 22 | 8-Φ18 | 394 | 280 | |
| 80 | 310 | 195 | 160 | 135 | 121 | 22 | 8-Φ18 | 455 | 300 | |
| 100 | 350 | 230 | 190 | 160 | 150 | 24 | 8-Φ23 | 550 | 320 | |
| 125 | 400 | 270 | 220 | 188 | 176 | 28 | 8-Φ25 | 636 | 350 | |
| 150 | 450 | 300 | 250 | 218 | 204 | 30 | 8-Φ25 | 706 | 400 | |
| 200 | 550 | 375 | 320 | 282 | 260 | 38 | 12-Φ30 | 859 | 450 | |
| 250 | 650 | 445 | 385 | 345 | 313 | 42 | 12-Φ34 | 1016 | 560 | |
| 300 | 750 | 510 | 450 | 408 | 364 | 46 | 16-Φ34 | 1200 | 640 | |
| 350 | 850 | 570 | 510 | 465 | 422 | 52 | 16-Φ34 | 1340 | 640 | |
| 400 | 950 | 655 | 585 | 535 | 474 | 58 | 16-Φ41 | 1495 | 720 | |
| 450 | 1050 | 680 | 610 | 560 | 524 | 60 | 20-Φ41 | 1581 | 800 | |
| 500 | 1150 | 755 | 670 | 612 | 576 | 62 | 20-Φ48 | 1790 | 950 | |
| 600 | 1350 | 890 | 695 | 730 | 678 | 62 | 20-Φ54 | 2035 | 950 | |
| 6.4MPa | 15 | 170 | 105 | 75 | 55 | 40 | 18 | 4-Φ14 | 142 | 160 |
| 凹凸法蘭MFMZ41HZ41 YZ41WZ40 HZ40YZ40 W6464P64R64I |
20 | 190 | 125 | 90 | 68 | 51 | 20 | 4-Φ18 | 142 | 160 |
| 25 | 210 | 135 | 100 | 78 | 58 | 22 | 4-Φ18 | 214 | 200 | |
| 32 | 230 | 150 | 110 | 82 | 66 | 24 | 4-Φ23 | 269 | 200 | |
| 40 | 240 | 165 | 125 | 95 | 76 | 24 | 4-Φ23 | 343 | 240 | |
| 50 | 250 | 175 | 135 | 105 | 88 | 26 | 4-Φ23 | 370 | 240 | |
| 65 | 280 | 200 | 160 | 130 | 110 | 28 | 8-Φ23 | 396 | 280 | |
| 80 | 310 | 210 | 170 | 140 | 121 | 30 | 8-Φ23 | 458 | 300 | |
| 100 | 350 | 250 | 200 | 168 | 150 | 32 | 8-Φ25 | 553 | 300 | |
| 125 | 400 | 295 | 240 | 202 | 176 | 36 | 8-Φ30 | 638 | 350 | |
| 150 | 450 | 340 | 280 | 240 | 204 | 38 | 8-Φ34 | 718 | 400 | |
| 200 | 550 | 405 | 345 | 300 | 260 | 44 | 12-Φ34 | 873 | 450 | |
| 250 | 650 | 470 | 400 | 352 | 313 | 48 | 12-Φ41 | 1050 | 560 | |
| 300 | 750 | 530 | 460 | 412 | 364 | 54 | 16-Φ41 | 1203 | 640 | |
| 350 | 850 | 595 | 525 | 475 | 422 | 60 | 16-Φ41 | 1394 | 720 | |
| 400 | 950 | 670 | 585 | 525 | 474 | 66 | 16-Φ48 | 1645 | 800 | |
| 500 | 1150 | 800 | 705 | 640 | 576 | 70 | 20-Φ54 | 2285 | 950 | |
| 600 | 1350 | 930 | 820 | 750 | 678 | 70 | 20-Φ58 | 2610 | 950 |
| 10.0MPa | DN | L | D | D1 | D2 | D6 | b | b-Φd | H | D0 |
|---|---|---|---|---|---|---|---|---|---|---|
| 凹凸法蘭 MFM Z41H Z41Y Z41W Z40H Z40Y Z40W 100 100P 100R100I |
15 | 170 | 105 | 75 | 55 | 40 | 20 | 4-Φ14 | 175 | 160 |
| 20 | 190 | 125 | 90 | 68 | 51 | 22 | 4-Φ18 | 180 | 160 | |
| 25 | 210 | 135 | 100 | 78 | 58 | 24 | 4-Φ18 | 310 | 180 | |
| 32 | 230 | 150 | 110 | 82 | 66 | 24 | 4-Φ23 | 320 | 200 | |
| 40 | 240 | 165 | 125 | 95 | 76 | 26 | 4-Φ23 | 360 | 200 | |
| 50 | 250 | 195 | 145 | 112 | 88 | 28 | 4-Φ25 | 490 | 240 | |
| 65 | 280 | 220 | 170 | 138 | 110 | 32 | 8-Φ25 | 540 | 240 | |
| 80 | 310 | 230 | 180 | 148 | 121 | 34 | 8-Φ25 | 573 | 280 | |
| 100 | 350 | 265 | 210 | 172 | 150 | 38 | 8-Φ30 | 575 | 320 | |
| 125 | 400 | 310 | 250 | 210 | 176 | 42 | 8-Φ34 | 744 | 360 | |
| 150 | 450 | 350 | 290 | 250 | 204 | 46 | 12-Φ34 | 800 | 400 | |
| 200 | 550 | 430 | 360 | 312 | 260 | 54 | 12-Φ41 | 800 | 500 | |
| 250 | 650 | 500 | 430 | 382 | 313 | 60 | 12-Φ41 | 1050 | 640 | |
| 300 | 750 | 585 | 500 | 422 | 364 | 70 | 16-Φ48 | 1208 | 720 | |
| 350 | 850 | 655 | 560 | 498 | 422 | 76 | 16-Φ54 | 1410 | 720 | |
| 400 | 950 | 715 | 620 | 558 | 474 | 80 | 16-Φ54 | 1655 | 800 | |
| 16.0MPa | 15 | 170 | 110 | 75 | 52 | 40 | 24 | 4-Φ18 | 230 | 160 |
| 凹凸法蘭 MFM Z41H Z41Y Z41W Z40H Z40Y Z40W 160 160P 160R160I |
20 | 190 | 130 | 90 | 62 | 51 | 26 | 4-Φ23 | 260 | 180 |
| 25 | 210 | 140 | 100 | 72 | 58 | 28 | 4-Φ23 | 280 | 200 | |
| 32 | 230 | 165 | 115 | 85 | 66 | 30 | 4-Φ25 | 312 | 200 | |
| 40 | 240 | 175 | 125 | 92 | 76 | 32 | 4-Φ27 | 350 | 240 | |
| 50 | 300 | 210 | 165 | 132 | 88 | 36 | 8-Φ25 | 512 | 280 | |
| 65 | 340 | 245 | 190 | 152 | 110 | 44 | 8-Φ30 | 560 | 320 | |
| 80 | 390 | 260 | 205 | 168 | 121 | 46 | 8-Φ30 | 585 | 350 | |
| 100 | 450 | 300 | 240 | 200 | 150 | 48 | 8-Φ34 | 630 | 400 | |
| 125 | 525 | 355 | 285 | 238 | 176 | 60 | 8-Φ41 | 723 | 500 | |
| 150 | 600 | 390 | 318 | 270 | 204 | 66 | 12-Φ41 | 820 | 560 | |
| 200 | 750 | 480 | 400 | 345 | 260 | 78 | 12-Φ48 | 990 | 720 | |
| 250 | 850 | 580 | 485 | 425 | 313 | 88 | 12-Φ54 | 1104 | 800 | |
| 300 | 950 | 665 | 570 | 510 | 364 | 100 | 16-Φ54 | 1314 | 800 |
溫馨提示:
本文中所有文字、數據、圖片均只適用于參考。需要查看更多的Z41國標手動法蘭閘閥性能參數、結構尺寸參數、價格等詳情,或要求印刷樣本,請聯系我們。